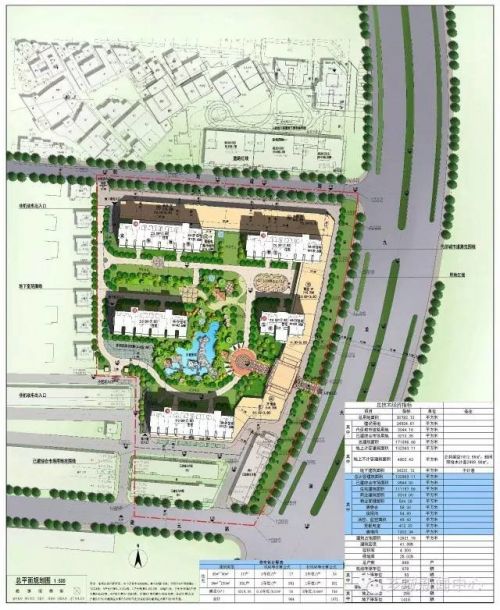
日前,位于市区九龙大道西侧、芗城区建元路北侧的新城苑·南区通过限高审批即将动工。新城苑·南区项目由新城房地产集团开发,项目拟建150米高的地标建筑,为目前漳州市区已批最高建筑。


项目规划
planning
该项目规划建设5幢,1幢47层板式、2幢46层复式、1幢46层板式、1幢40层板式复式楼,项目总投资7.5亿元,总用地面积30782.12平方米,总建筑面积171396.66平方米。地上132363.11平方米,其中综合市场面积9544平方米,住宅建筑面积111157.56平方米、商业建筑面积9319.06平方米;地下两层,分别为4802.43和34231.12平方米。总户数908户,停车位978个,非机动车停车位1671个。
来源:闽南日报、芗城新闻中心 漳州芗城乡讯报微信